
再優秀的住宅空間總會有些許不完美元素讓屋主心存困擾,如同公共空間梁柱橫行,在無法拆除情況之下,就讓設計師來將缺陷化為優點的美妝整形吧! 透過吉作設計劉嘉雯設計師巧手改造,令人讚賞圓弧造型成為餐桌最柔美垂直端景,從餐桌至吊燈在上攀圓形天花,將時尚語彙詮釋得更加精彩。

公共空間因地坪及天花皆呈現潔淨純白基底,加上使用坪數充裕優質條件之下,沉穩大器如同黑咖啡的低調香醇非常適宜在大空間游移串聯。其中電視牆波浪造型曲線和木質包覆,轉個角度一路延伸至餐廳背牆,外框茶鏡的透明亮度,洗練出線條俐落質感。擁有戶外一大片翠綠盎然自然景觀,想必日光採集無須多慮,正因如此客廳吊燈省略卻創造出更寬闊空間,目光聚焦就落在電視牆背景波浪造型,間接舞動出多姿韻律。

圓弧形餐廳絕對是室內吸精焦點,不僅僅是圓弧形優雅串聯,在顏色不繁複與單一色階的堆疊之下,居家溫暖層面、視覺呼應與生活動線,完全自然流暢
.jpg)
屋主心儀的簡約俐落風格相對印證在收納技巧,無須高調展示櫃體,所有雜物及物件都需巧妙隱藏於無形,透過整體木門牆與玄關格局,井然有序的儲藏隱藏空間,不僅僅將風水開門見廳的問題考量迎刃而解,力求整體時尚簡潔風格更加完美詮釋。
.jpg)
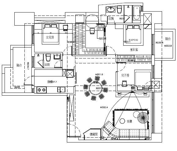
平面圖
CASE DATA
設計|吉作設計 02-2775-5057
設計師|劉嘉雯
形式|電梯華廈
坪數|35坪
格局|3房2廳2衛
建材|造型板、茶鏡、系統櫃、木作、磁磚、壁紙







